Vivienda Cayo

2020

Proyecto Colaboración | Licenciado en Ciencias de la Ingeniería Pablo Campos

Obra Menor 2da. Ampliación

Concepción - Chile

10,46 m2

 

El proyecto es una 2da. ampliación, la extensión del comedor-estar.

Portfolio Image

Perspectiva

Imagen 1

Portfolio Image

Vista

Imagen 2

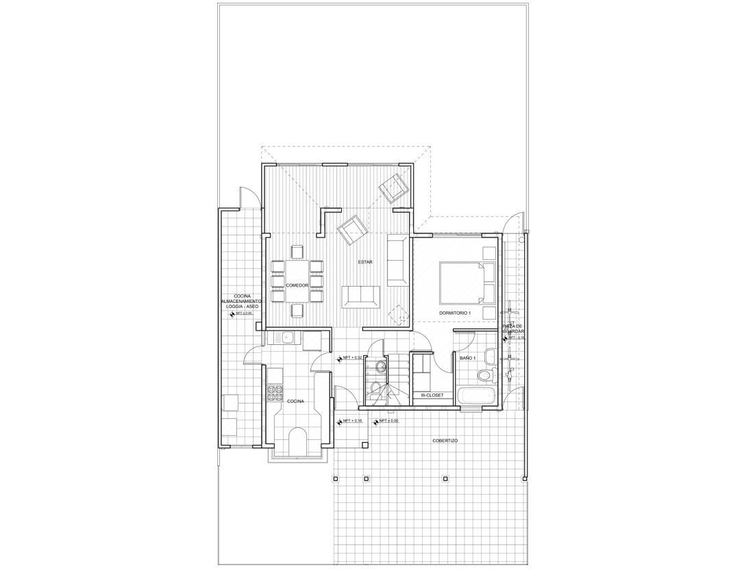
Portfolio Image

Planta

Nivel 1

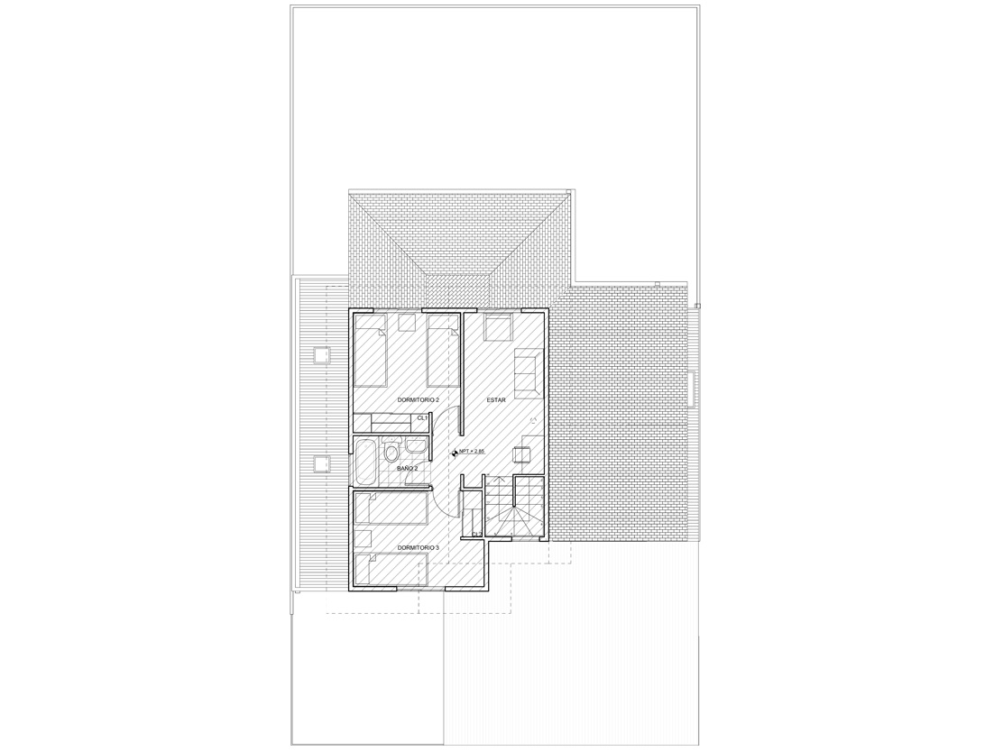
Portfolio Image

Planta

Nivel 2

Portfolio Image

Elevaciones

Elevación Sur - Elevación Norte

Top