Vivienda Cayo

2020

Proyecto Colaboración | Licenciado en Ciencias de la Ingeniería Pablo Campos

Proyecto Colaboración | Protekgas Inspecciones de gas y compañia ltda.

Regularización Obra Menor

Concepción - Chile

64,51 m2

 

El proyecto es la regularización de una obra menor, cobertizo y garage, comedor, cocina y una modificación en el uso del estar.

Portfolio Image

Perspectiva

Imagen 1

Portfolio Image

Vista

Imagen 2

Portfolio Image

Planta

Nivel 1

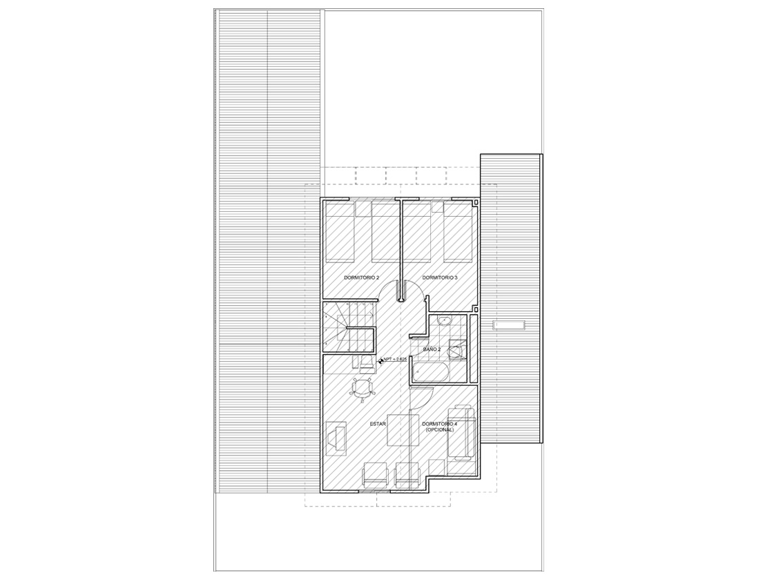
Portfolio Image

Planta

Nivel 2

Portfolio Image

Elevaciones

Elevación Norte - Elevación Sur

Top