Centro de Estética Emy Studio

2021 - 2022

Instalaciones Eléctricas | Alan Fuentes

Obra Menor Habilitación

Concepción - Chile

53,70 m2

El Proyecto se emplaza en un Edificio, en una oficina, que se habilita a un centro de estética y tratamientos de belleza, tiene modificaciones de tabiquería de madera.

Portfolio Image

Panorámica

Imagen 1

Portfolio Image

Vista

Imagen 2

Portfolio Image

Planta

Actual

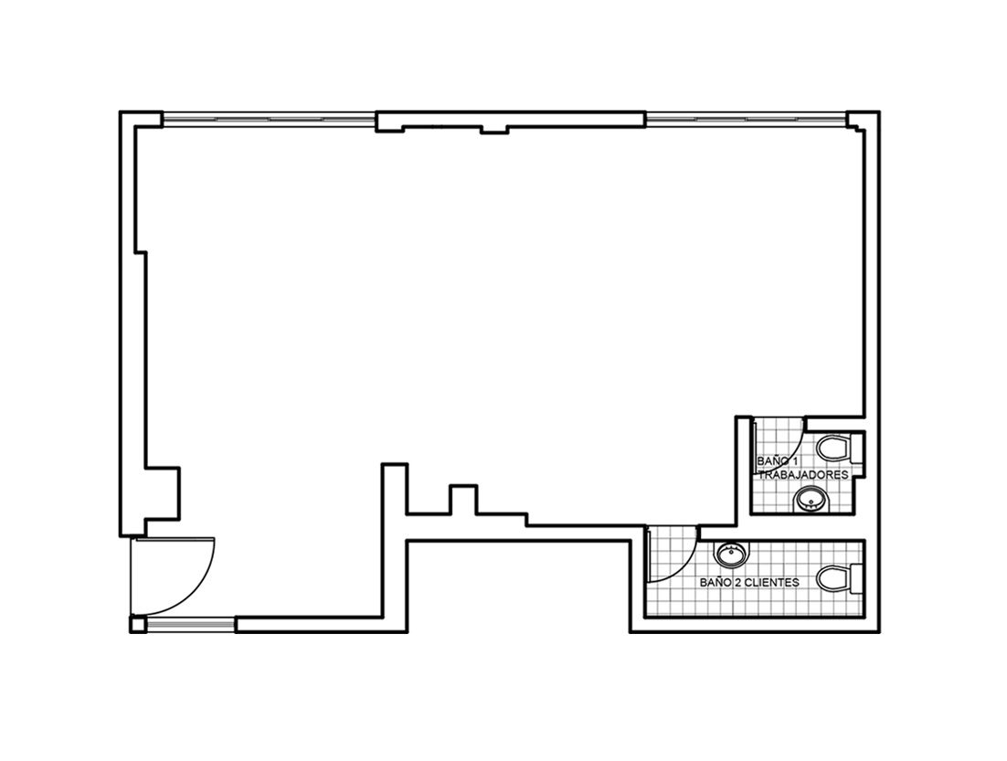
Portfolio Image

Planta

Propuesta

Portfolio Image

Elevaciones

Nor Poniente - Sur Poniente

Portfolio Image

Secciones

A-A, B-B

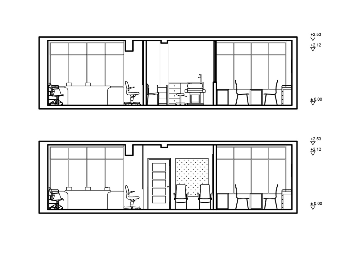
Portfolio Image

Secciones

C-C, D-D

Portfolio Image

Secciones

E-E

Top