Centro de Estética Emy Studio II

2023

Habilitación

Concepción - Chile

71,44 m2

El Proyecto está en un Edificio, tiene espacios de tratamientos de belleza y kinésico, en general es una suma de servicios profesionales.

Portfolio Image

Vista

Imagen 1 y 2

Portfolio Image

Vista

Imagen 3

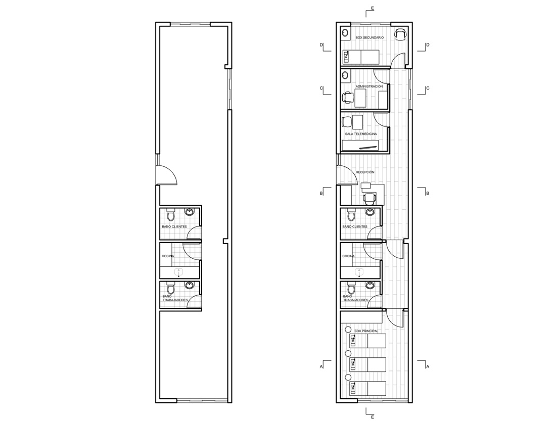
Portfolio Image

Plantas

Existente - Propuesta

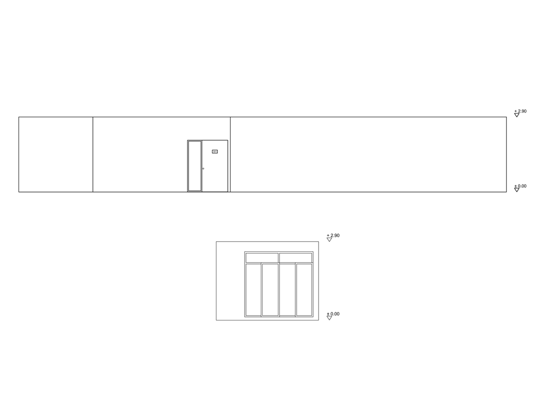
Portfolio Image

Elevación

Nor Poniente - Sur Poniente

Portfolio Image

Secciones

A-A, B-B

Portfolio Image

Secciones

C-C, D-D

Portfolio Image

Sección

E-E

Top