Casa Ascencio

2022

Obra Menor Ampliación

Talcahuano - Chile

75,99 m2

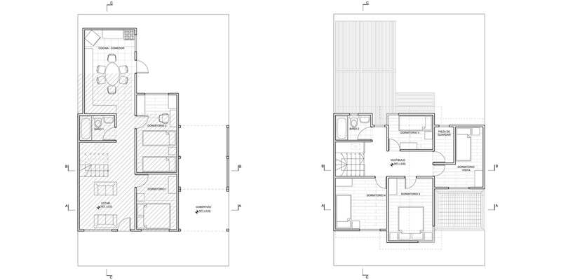
Se encargo la regularización de ampliaciones en el primer piso y un diseño de ampliación en el segundo piso, que tuvo varias aristas entre el cliente y el arquitecto, todas consensuadas, se definio un modelo que el cliente propuso como fachada, este referente se realizo en la fachada principal con algunos cambios pero manteniendo los volumenes, se hizo estos mismos volumenes en la fachada posterior, con la idea de configurar y armonizar la construcción, se pidio un segundo piso con 4 habitaciones, las cuales se realizon con la funcionalidad adecuada, la materialidad es de madera en muros perimetrales y divisiones interiores.

Portfolio Image

Plantas

Nivel 1 - Nivel 2

Portfolio Image

Elevaciones

Sur Oriente - Nor Poniente

Portfolio Image

Elevaciones

Nor Oriente - Sur Poniente

Portfolio Image

Secciones

A-A, B-B

Portfolio Image

Secciones

C-C

Top